Waldeck Road, Turnpike Lane | £950,000 Freehold
Property Features
- Stunning Three Double Bedroom House
- Desirable location
- Beautiful Extended Kitchen Diner With Underfloor Heating
- Luxury Family Bathroom With Underfloor Heating
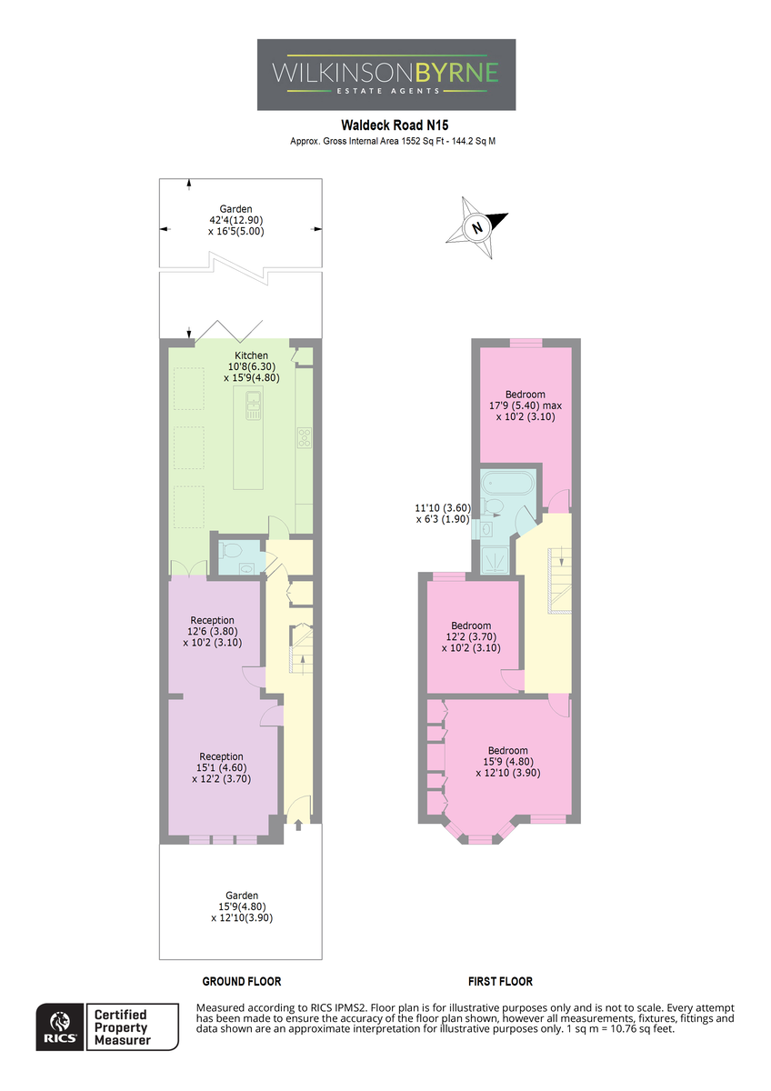
- Occupying over 1500 Sq Ft of living space
- Downstairs Cloakroom
Property Summary
A beautifully presented three double bedroom mid-terraced family home, ideally positioned on a desirable tree-lined residential road. Offering over 1,500 sq ft of well-appointed living space, this impressive property has been tastefully refurbished by the current owners to create a stylish and comfortable family home.
The ground floor provides excellent entertaining and living space, comprising two elegant reception rooms and a stunning extended kitchen/dining room. The kitchen is fitted with integrated appliances, underfloor heating, and features bi-folding doors alongside striking skylight windows, flooding the space with natural light and providing seamless access to the beautifully landscaped rear garden. A convenient downstairs cloakroom completes the ground floor accommodation.
Full Details
Guide Price: £950,000 - £975,000
A beautifully presented three double bedroom mid-terraced family home, ideally positioned on a desirable tree-lined residential road. Offering over 1,500 sq ft of well-appointed living space, this impressive property has been tastefully refurbished by the current owners to create a stylish and comfortable family home.
The ground floor provides excellent entertaining and living space, comprising two elegant reception rooms and a stunning extended kitchen/dining room. The kitchen is fitted with integrated appliances, underfloor heating, and features bi-folding doors alongside striking skylight windows, flooding the space with natural light and providing seamless access to the beautifully landscaped rear garden. A convenient downstairs cloakroom completes the ground floor accommodation.
Upstairs, the first floor offers three generously sized double bedrooms and a luxurious family bathroom, complete with a freestanding bath, separate walk-in shower, and underfloor heating.
The property is ideally located within the catchment area of several highly regarded primary and secondary schools, many of which have received Good and Outstanding Ofsted ratings.
For outdoor leisure, Belmont Recreation Ground and Downhills Park are just a short stroll away. Excellent transport links are nearby, including Turnpike Lane Underground Station, along with Hornsey railway station and Harringay Green Lanes railway station.
Residents can also enjoy easy access to the vibrant amenities of Green Lanes, Turnpike Lane and Wood Green High Road, which offer a wide array of independent boutiques, cafés, bars and restaurants. Notably nearby is the renowned Victorian pub The Salisbury, celebrated for its historic interior and lively atmosphere.
Disclaimer
Wilkinson Byrne endeavour to maintain accurate depictions of properties in Virtual Tours, Floor Plans and descriptions, however, these are intended only as a guide and purchasers must satisfy themselves by personal inspection.















































